"Swedish firm Kjellgren Kaminsky Architecture's 'Parkour' is a proposal of a redesign
of an old mental hospital in gothenburg. here apartments will be connected by large
common areas cutting through the old building and creating social and physical links."
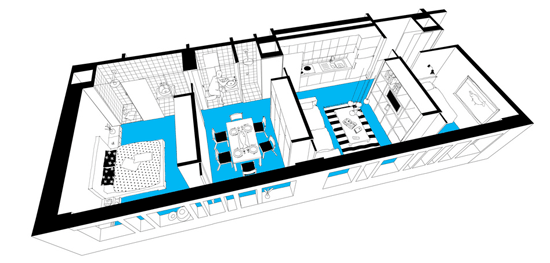
"The structure and depth of the existing building challenged the architect's to consider
the unexpected. could people's needs and requirements for housing quality be maintained
and exceeded within the challenging framework? the apartments are divided in two parts
that complement each other and combined creates an extremely flexible apartment.
first an ultra-compact zone of installations with kitchen, shower, toilet, laundry, some
storage, ventilation, electrical installations, media outlet, sockets and switches. then
the second part is built up of super-flexible functional zones that grow, shrink, disappear
and come back due to daily needs and desires."











No comments:
Post a Comment